College Collage

Multi-Use Community Art and Health Center

Open Art Studio View

Art and Design Open Studio

Marymount University is building a combined mixed-use arts and health center. It will contain a student health clinic, physical therapy clinic, and art focused and collab spaces. The center will be open to both students, faculty, and the greater Arlington community. The center needs to not only be practical but also fun and inviting to garner attraction.

In order to create a space that feels welcoming and community centered, the design of the center will take inspiration from “arcs and tangents”. The softer curved lines will create appealing features that the eye will be attracted to, while the linear straight lines keep the space structured. Curved lines deter emotions of fear and discomfort, and will allow users to feel more welcome. Soft but bright hues of orange create energetic and social tones, while blue and green compliment the wood tones and keep the space grounded.

Parti

Playing with the idea of arcs and tangents, the parti is an intepration of the shape it can take. By stacking quadrilateral and elongated shapes, a fun, flexible, but structured design can be constructed.

Inspiration Images

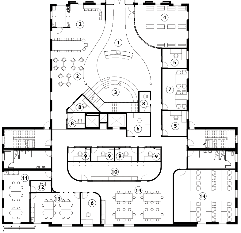
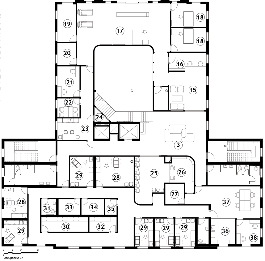
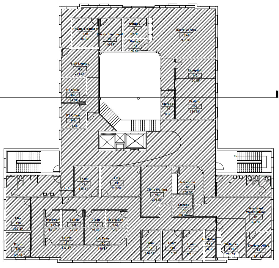
Floor Plans

First Floor

Second Floor

First Floor RCP

Second Floor RCP

MateriALS

Noraplan Environcare Rubber Flooring

Amstrong Flooring Altitude Red Rock LVT

Sherwin Williams Paint in Satin Finish

Renders

Reception/Lobby

Second Floor Lounge/Waiting Area

Physical Therapy Clinic Waiting Area

Physical Therapy Clinic Exercise Room

Student Health Clinic Waiting Area

Floating/Waiting Area between Clinics Elevation

Floating/Waiting Area between Clinics Perspective

Floating/Waiting Area between Clinics Axonometric

Curved contred lines create gentle visual pathways for users to follow.

Tangent structured lines direct circulation, creating visual pathways for users to follow.

Bright hues in back art focused areas create energizing zones.

Custom Windows

A curvilinear version of the parti has been transformed into various windows and openings. The size of the custom portal directly translated to the size/importance of the space it is attached to.

Small Window

Collab/Art Spaces

Large Long Window

Design Library

Tall Medium Windows

Physical Therapy

 

 

Medium Window

Physical Therapy

PT Archway

Physical Therapy

Clinic Archway

Student Health Clinic


Final Presented Poster


in Progress Work

Bubble 1

Bubble Diagram

Blocing1

Blocking Diagram First Floor

Blocking2

Blocking Diagram First Floor

First Floor

Second Floor

Initial Views/Perspectives

Cafe/Lobby

Floating/Waiting Area between Clinics

Physical Therapy Clinic Exercise Area