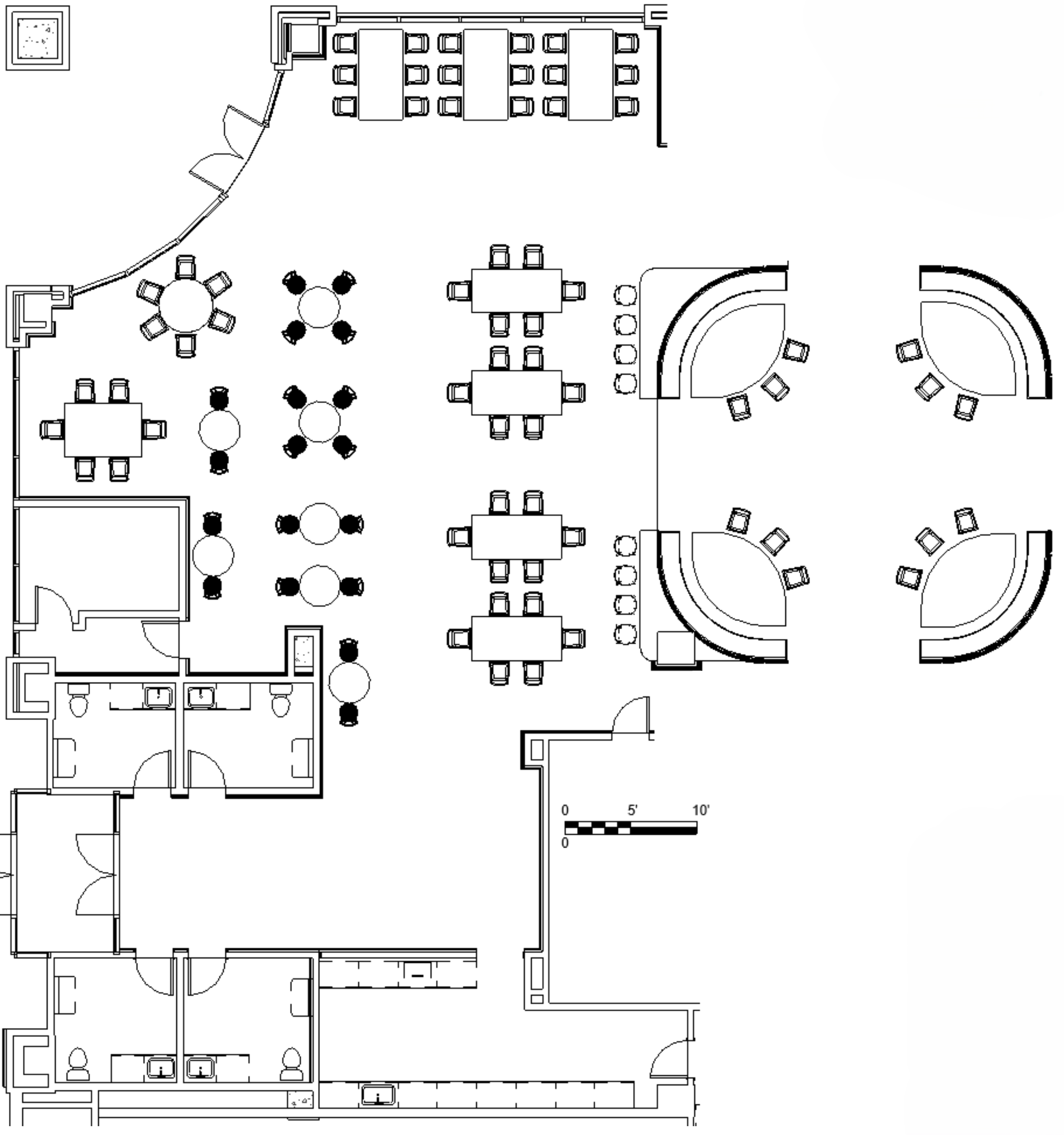
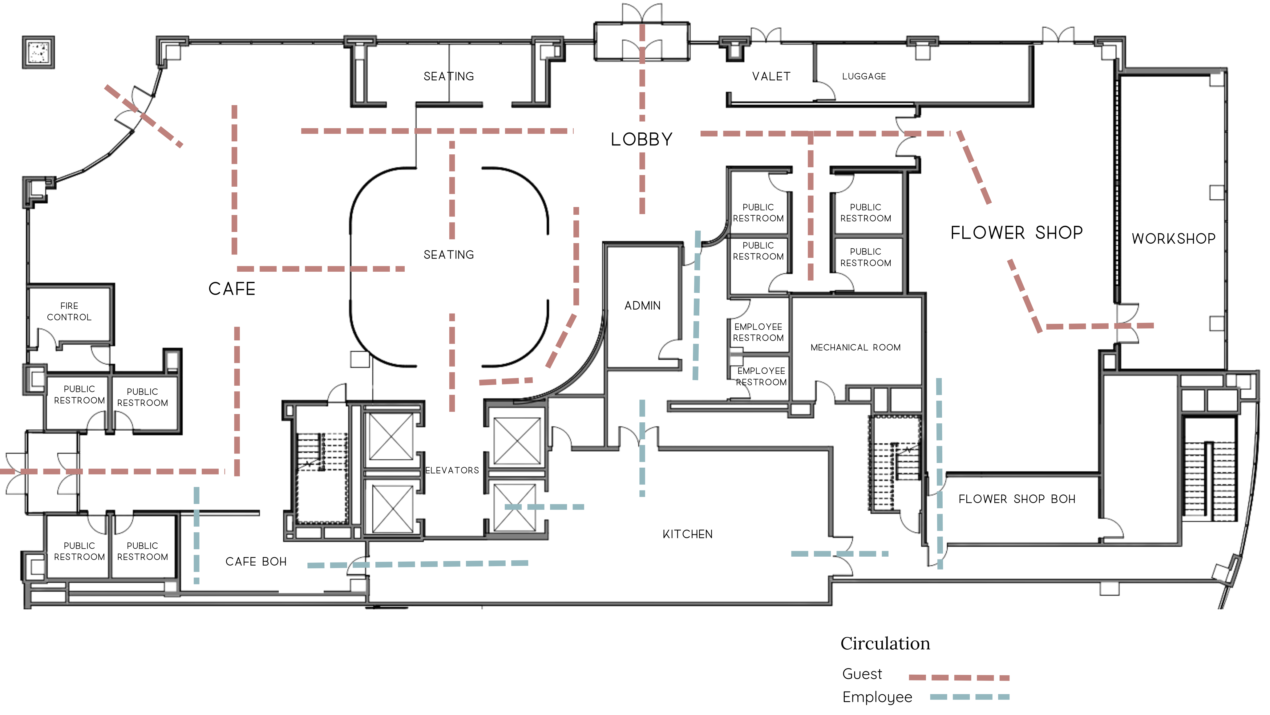
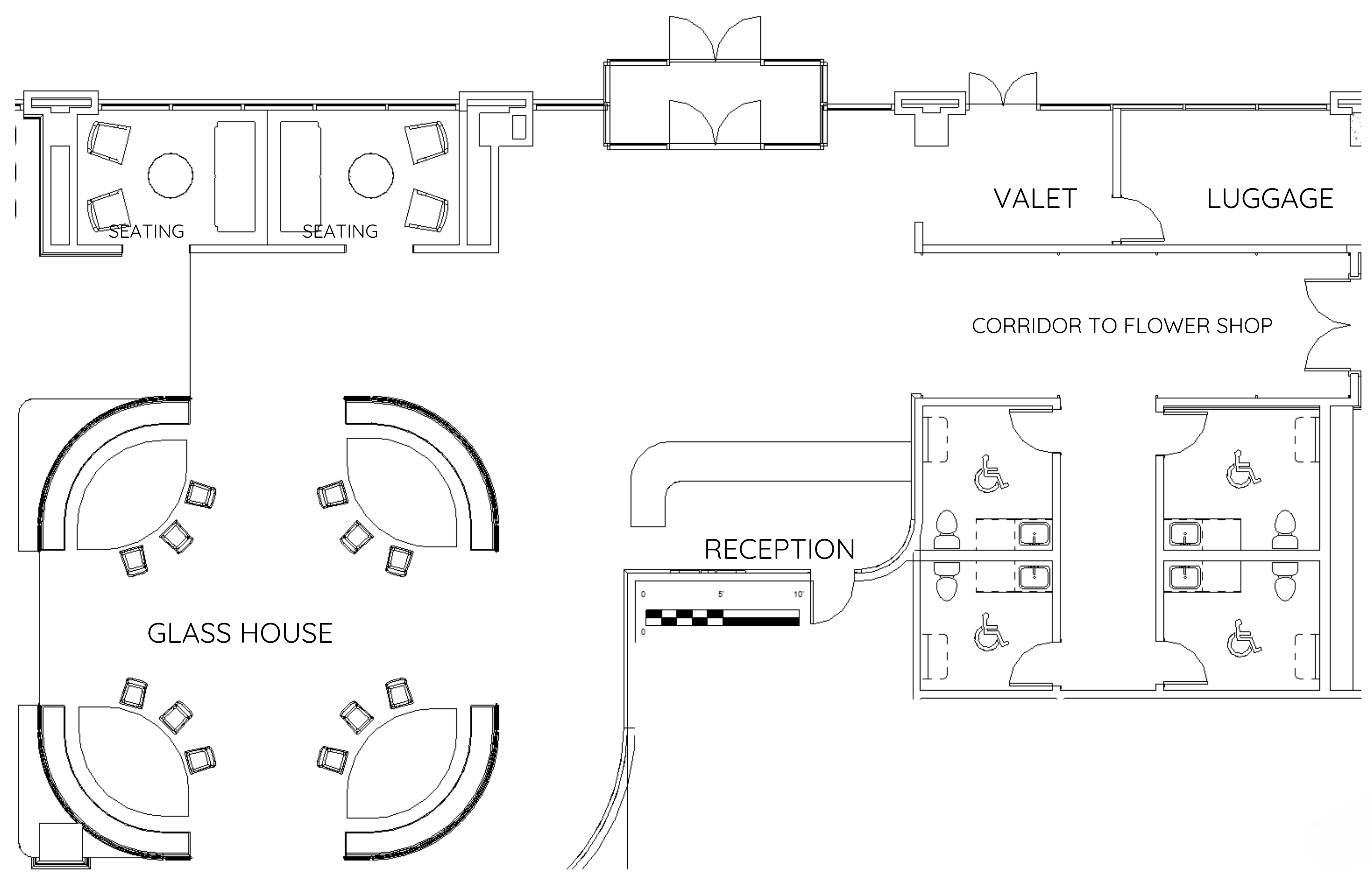
Lobby and Reception

A Proper Hotel destination, The Conservatory takes inspiration from the intricate window pane designs and botanical elements of classic glass house greenhouse designs. Soft yet bright earthy tones of greens, reds, and blues, flower motifs, and classic glass house elements define the visual experience. Rich floral notes of rose permeate the lobby, and make way to the aroma of coffee and warm pastries of the cafe at the other side of the glass house. Guestrooms are inspired by different flowers, making each stay unique.
Floor Plans
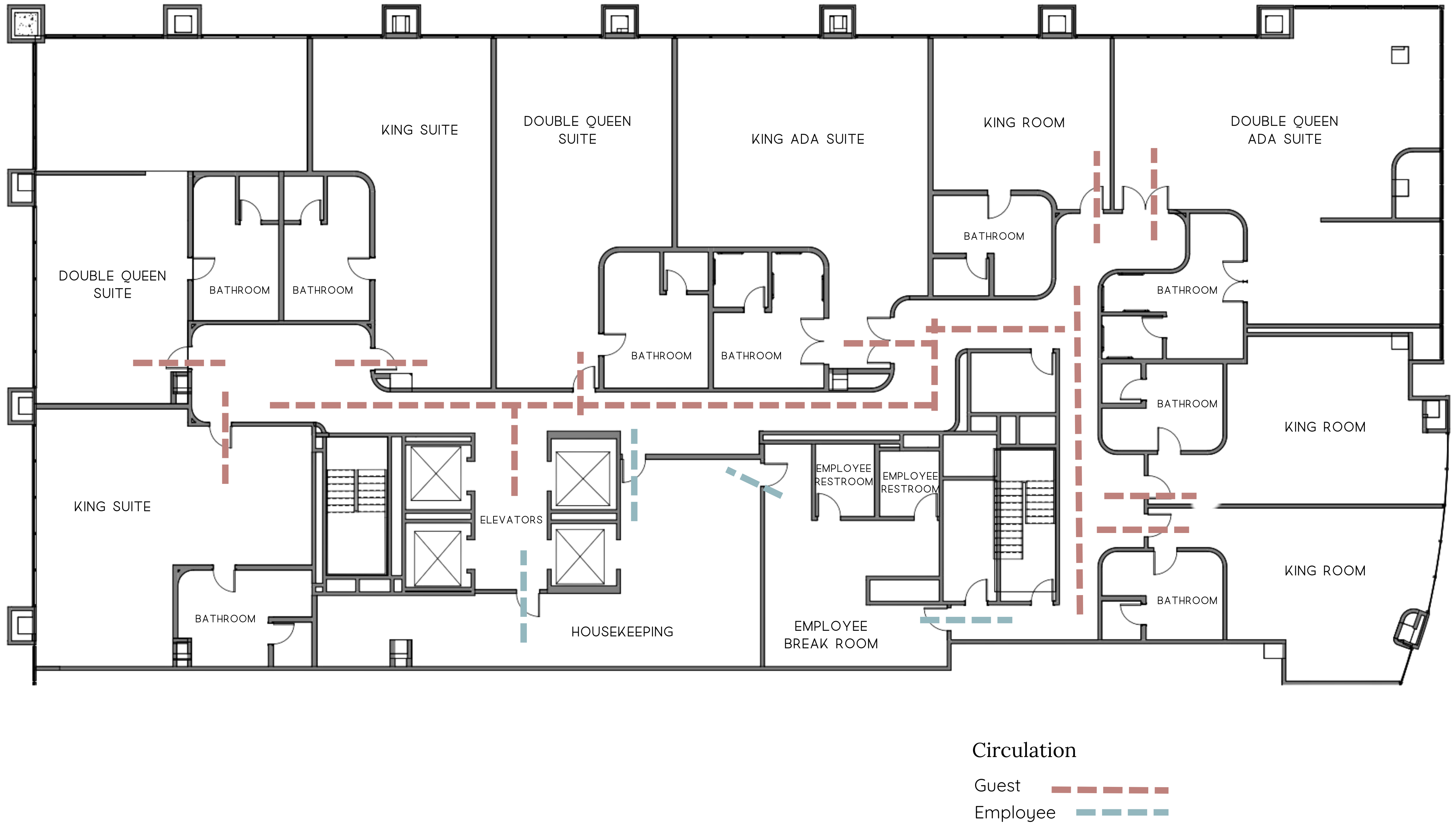
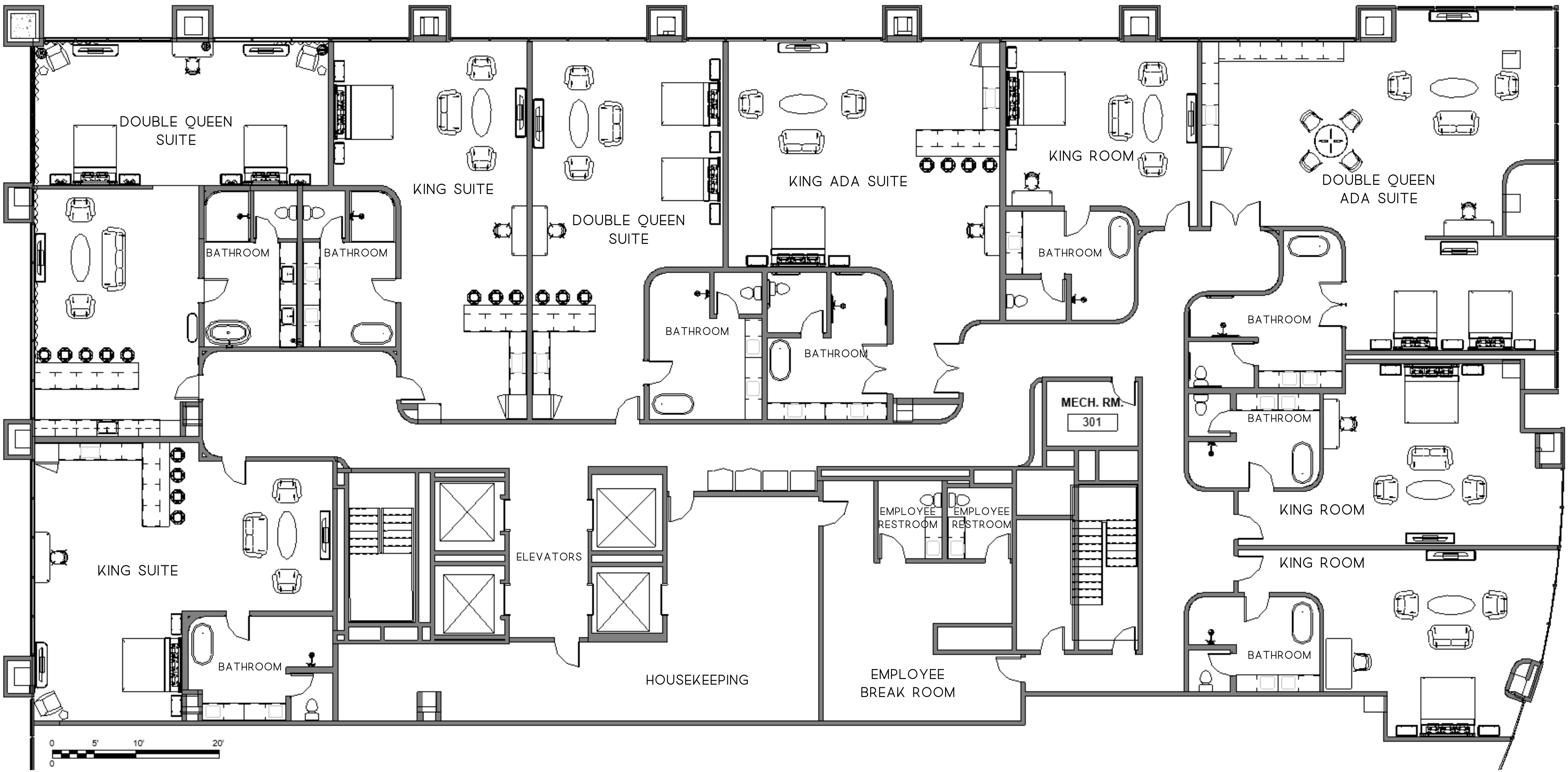
Guest Room Floor
Lobby
Materials
Renders and Elevation
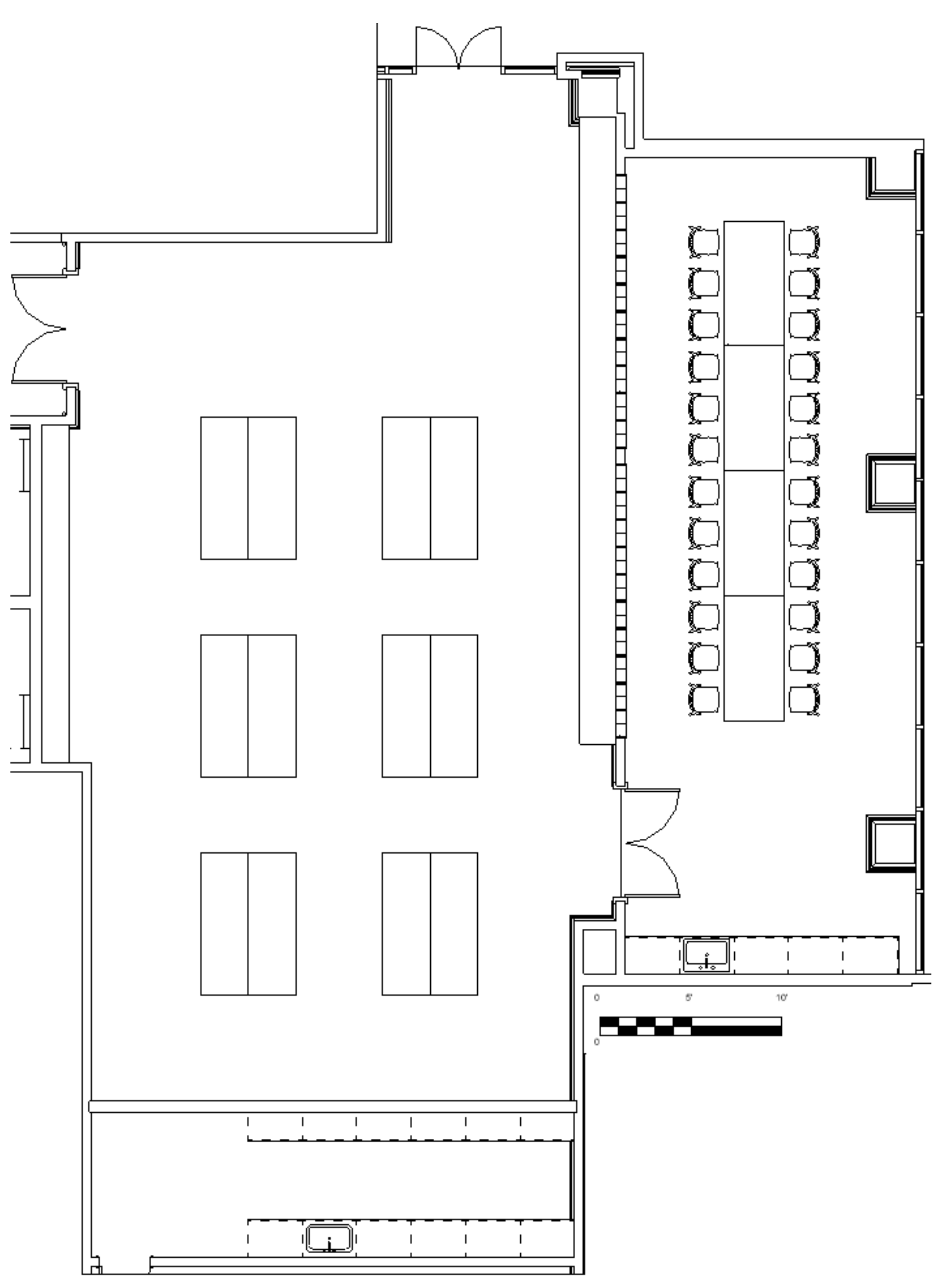
The Blossom Boutique - Flower and Artisan Shop/workshop
Materials
Renders and Elevations
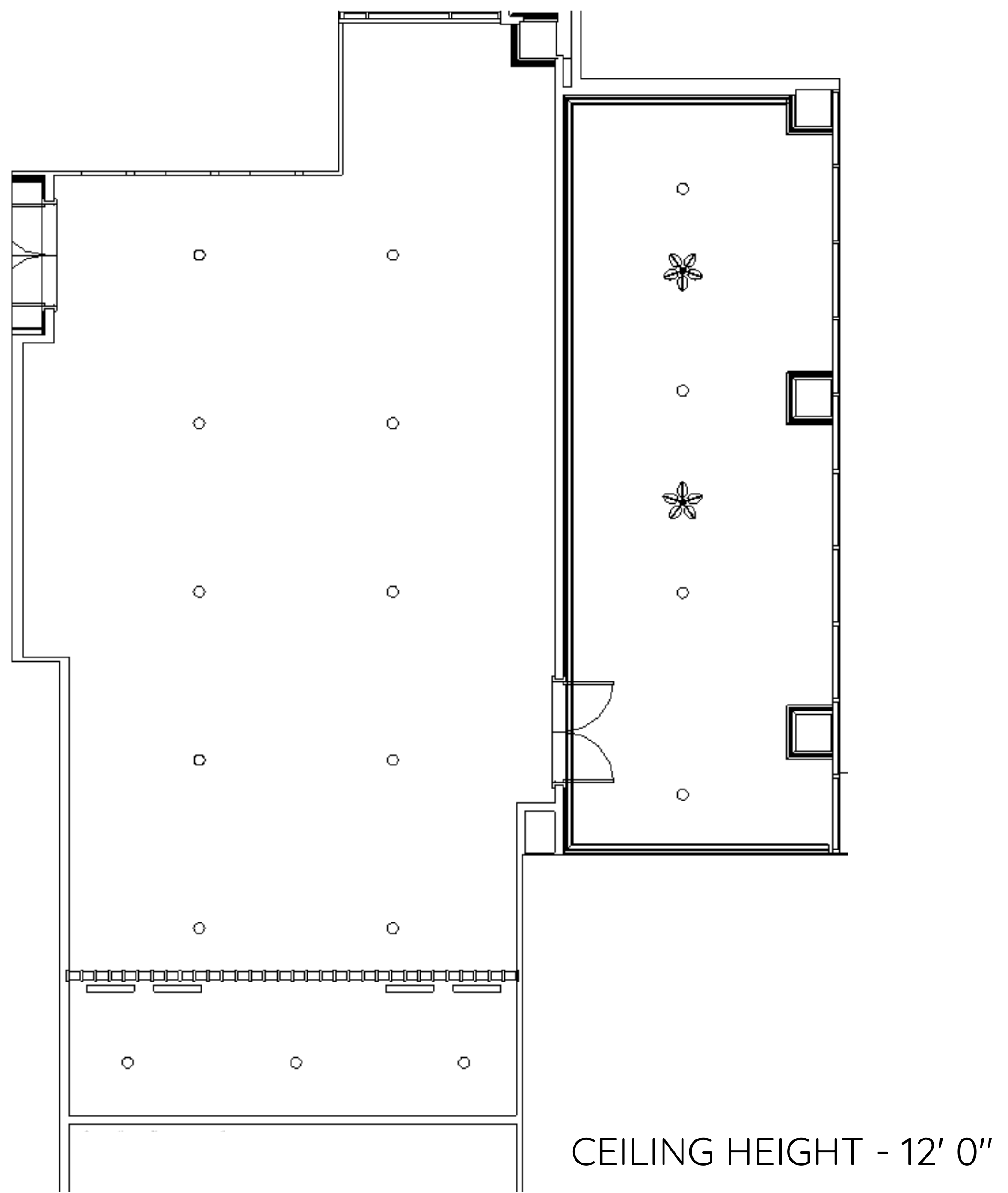
The Petal Parlor - CafeĀ
Materials
Renders and Elevation
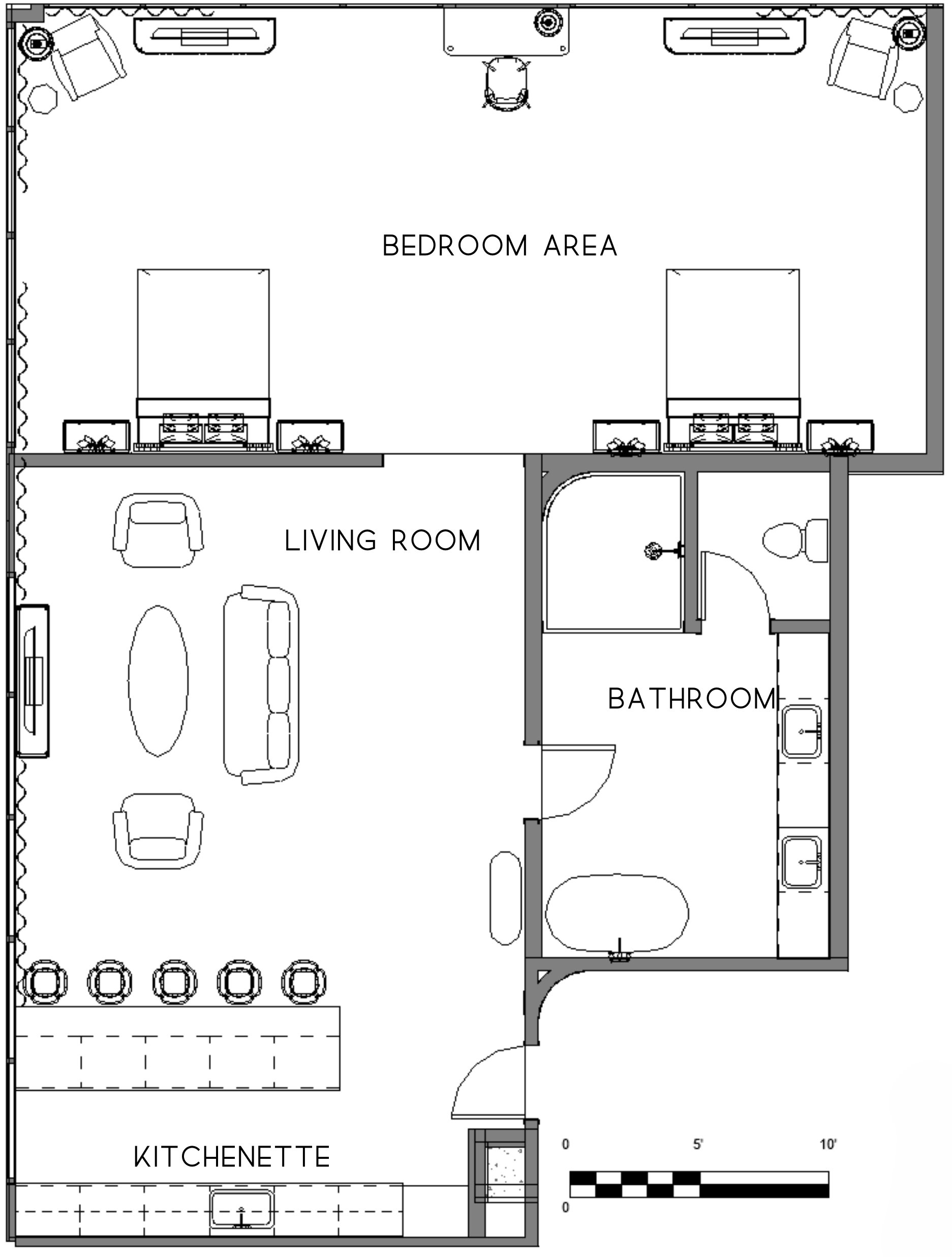
Double Queen Suite - Deluxe Guest Room
Materials
renders
Design Development Book
in Progress Work
Hand-sketched Perspectives
Lobby
Greenhouse
Petal Parlor
Blossom Boutique
Blossom Boutique Door Sketch

